Cei Conferenza episcopale italiana
da pubblicazione allegata al n.671
di "Casabella" settembre 1999

     
 

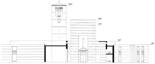
Progetti per la Chiesa di Santa Maria in Zivido di San Giuliano Milanese

 

Burelli A. Romano
Gennaro P. Sonia

progettisti

con
Emanuele Garbin

collaboratore
Enrico Botta

artista
Giorgio Celiberti

liturgista
don Roberto Tagliaferri

sezione C-C

burelli_image5.jpg (34256 byte)
 

indice progetti


sito di propriet� della Associazione Culturale Zivido
pierino.esposti@gmail.com